Liverpool
Exeter
Wales
Current Auction
Previous Auction

Lot 34
Guide Price: £90,000*

Auction Date: Thursday 23rd October 2025

Auction Venue: Online Virtual Auction, remote bidding only

Auction Time: 12:00


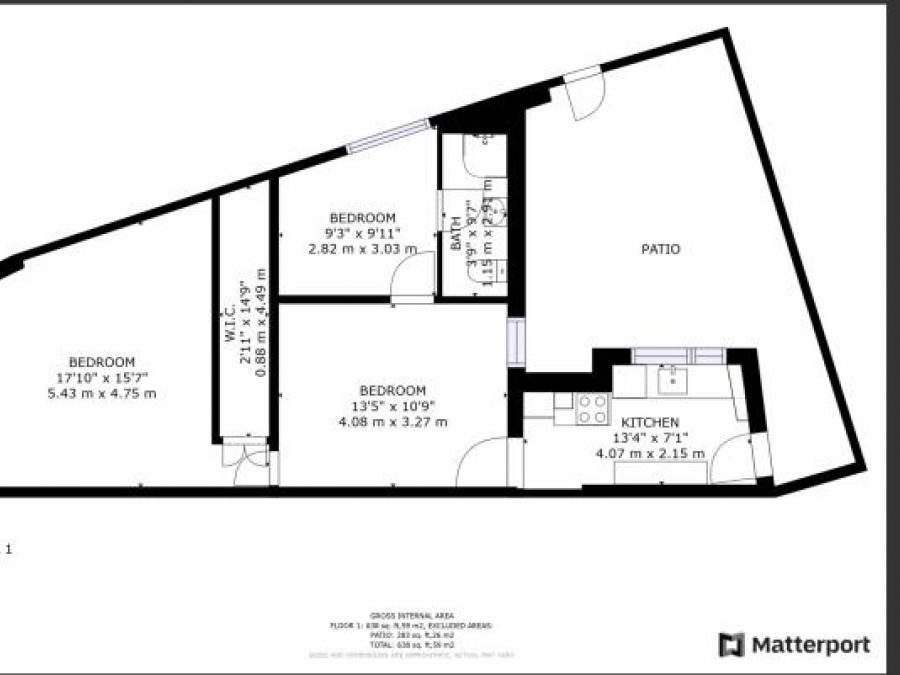
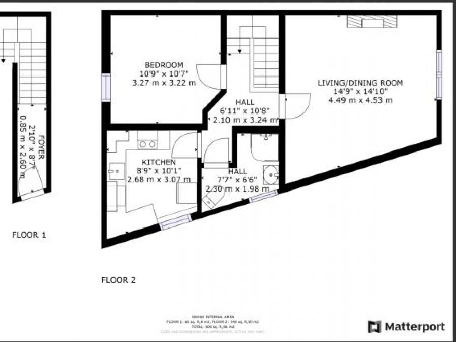
29 Wykeham Street/30 Orwell Road, Liverpool

View large map

Property Description

A two storey corner property comprising of two self contained flats (1x1 bed and 1x2 bed) accessed via separate entrances. The property has recently been refurbished to include a new roof. The property benefits from double glazing and electric heating. Both flats are let by way of Assured Shorthold Tenancies producing approximately £14,000 per annum. There is potential to increase the rent to market value at approximately £15,500 per annum.


Situated

Fronting Wykeham Street on the corner of Orwell Road which in turn is off Stanley Road within close proximity to Local amenities and approximately 2 miles from Liverpool City Centre.

Ground Floor (30 Orwell Road)

Flat 1 - Kitchen, Lounge, Shower Room/W.C, 2 Bedrooms

First Floor (29 Wykeham Street)

Flat 2 - Lounge, Kitchen, Bedroom, Shower Room/WC.

Outside

Yard to the rear. N.B the new roof comes with a 10 year guarentee Recently refurbished to include new kitchens in 2023 along with higher energy efficient radiators and EICR in 2025 New Drain sleeve fitted 2025 which comes with a 5 year guarentee (documents included in the legal pack)

EPC Rating

E for both Flats

Council Tax

Wykeham Street - A Orwell Road - A

Tenure

Freehold


Listed By

Sutton Kersh - Auctions
2 Cotton Street,
Liverpool,
L3 7DY

t. 0151 207 6315
auctions@suttonkersh.co.uk

Make An Enquiry...

Fields marked * are required.


Your information is being collected and processed by Countrywide. All information will be processed in accordance with the General Data Protection Regulation. Full details of how we process your information can be found on our website Privacy Policy. Print copies of our privacy notice are available on request. If you need to discuss how your information is being processed, please contact us at privacy@countrywide.co.uk

Disclaimer: On some client's instructions not all properties are available to purchase prior to auction however we will submit all offers on your behalf.


* Guide Price

An indication of the seller's current minimum acceptable price at auction. The guide price or range of guide prices is given to assist consumers in deciding whether or not to pursue a purchase. It is usual, but not always the case, that a provisional reserve range is agreed between the seller and the auctioneer at the start of marketing. As the reserve is not fixed at this stage and can be adjusted by the seller at any time up to the day of the auction in the light of interest shown during the marketing period, a guide price is issued. This guide price can be shown in the form of a minimum and maximum price range within which an acceptable sale price (reserve) would fall, or as a single price figure within 10% of which the minimum acceptable price (reserve) would fall. A guide price is different to a reserve price (see separate definition). Both the guide price and the reserve price can be subject to change up to and including the day of the auction.

* Reserve Price

The seller's minimum acceptable price at auction and the figure below which the auctioneer cannot sell. The reserve price is not disclosed and remains confidential between the seller and the auctioneer. Both the guide price and the reserve price can be subject to change up to and including the day of the auction.

Buyers Fee

A successful purchaser will also be required to pay a Buyer’s Administration Charge of 1.2% of the purchase price subject to a minimum fee of £1,500 including VAT (unless stated otherwise within the property description in the catalogue) by debit card or bank transfer.

Legal Packs

You are bidding on the basis that you have made all necessary enquiries, particularly in respect of lots the auctioneer has not inspected or had initial sight of tenancy details, and have checked the General and Special Conditions of Sale and are satisfied that you fully understand their content. Please note that some legal packs may contain additional fees (such as the requirement for the seller to pay the vendor's legal fees).

Property Auctions South West Logo

Next auction
23rd October at 12pm
View Lots

Covering the South West of England

propertyauctionsouthwest.co.uk

John Francis Logo

Next auction
1st January at 3pm
View lots

Covering Wales

johnfrancis.co.uk

Sutton Kersh Logo

Next auction
23rd October at 12pm
View Lots

Covering the North West of England

suttonkersh.co.uk

Want to talk to someone?

Contact our regional offices by telephone