Liverpool
South West
Current Auction
Previous Auction

Lot 30
Guide Price: £450,000+*

Auction Date: Thursday 2nd April 2026

Auction Venue: Online Virtual Auction, remote bidding only

Auction Time: 12:00


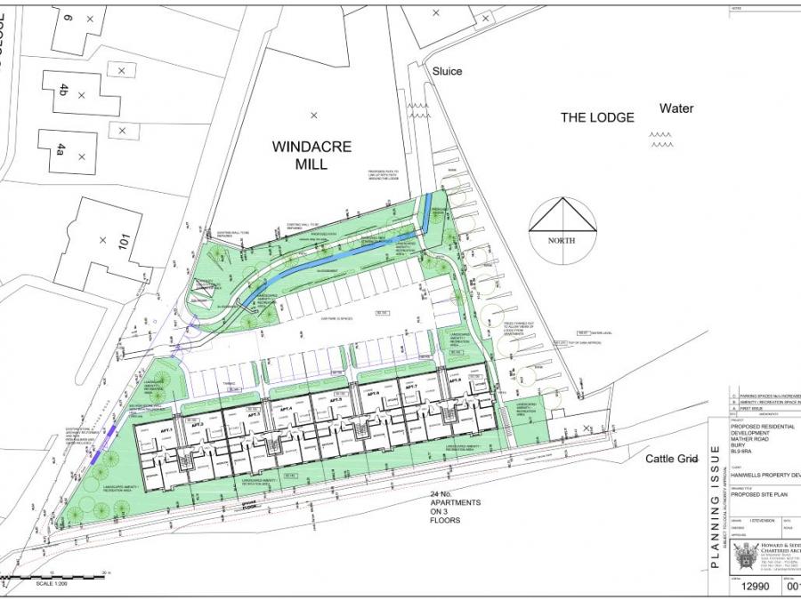
Land and Buildings on the SE Side of Mather Road, Bury, Bury, BL9 6QU

Property Description

A 3,400 metre square vacant site with the benefit of lapsed planning permission to erect a 3 storey apartment scheme comprising of 24 X 2 bed no. units.

We believe all main services are available however, purchasers should make their own further enquiries.

Planning Reference with Bury Council - 61196


Situated

Off Walmersley Road in a well-established area close to local amenities, schooling and transport links. The land is approximately 1.5 miles from Moorgate Retail Park.

Tenure

Leasehold


Listed By

Sutton Kersh - Auctions
2 Cotton Street,
Liverpool,
L3 7DY

t. 0151 207 6315
auctions@suttonkersh.co.uk

Make An Enquiry...

Fields marked * are required.


Your information is being collected and processed by Countrywide. All information will be processed in accordance with the General Data Protection Regulation. Full details of how we process your information can be found on our website Privacy Policy. Print copies of our privacy notice are available on request. If you need to discuss how your information is being processed, please contact us at privacy@countrywide.co.uk

Disclaimer: On some client's instructions not all properties are available to purchase prior to auction however we will submit all offers on your behalf.


* Guide Price

An indication of the seller's current minimum acceptable price at auction. The guide price or range of guide prices is given to assist consumers in deciding whether or not to pursue a purchase. It is usual, but not always the case, that a provisional reserve range is agreed between the seller and the auctioneer at the start of marketing. As the reserve is not fixed at this stage and can be adjusted by the seller at any time up to the day of the auction in the light of interest shown during the marketing period, a guide price is issued. This guide price can be shown in the form of a minimum and maximum price range within which an acceptable sale price (reserve) would fall, or as a single price figure within 10% of which the minimum acceptable price (reserve) would fall. A guide price is different to a reserve price (see separate definition). Both the guide price and the reserve price can be subject to change up to and including the day of the auction.

* Reserve Price

The seller's minimum acceptable price at auction and the figure below which the auctioneer cannot sell. The reserve price is not disclosed and remains confidential between the seller and the auctioneer. Both the guide price and the reserve price can be subject to change up to and including the day of the auction.

Buyers Fee

A successful purchaser will also be required to pay a Buyer’s Administration Charge of 1.2% of the purchase price subject to a minimum fee of £1,500 including VAT (unless stated otherwise within the property description in the catalogue) by debit card or bank transfer.

Legal Packs

You are bidding on the basis that you have made all necessary enquiries, particularly in respect of lots the auctioneer has not inspected or had initial sight of tenancy details, and have checked the General and Special Conditions of Sale and are satisfied that you fully understand their content. Please note that some legal packs may contain additional fees (such as the requirement for the seller to pay the vendor's legal fees).

Property Auctions South West Logo

Next auction
2nd April at 12pm
View Lots

Covering the South West of England

propertyauctionsouthwest.co.uk

Sutton Kersh Logo

Next auction
2nd April at 12pm
View Lots

Covering the North West of England

suttonkersh.co.uk

Want to talk to someone?

Contact our regional offices by telephone