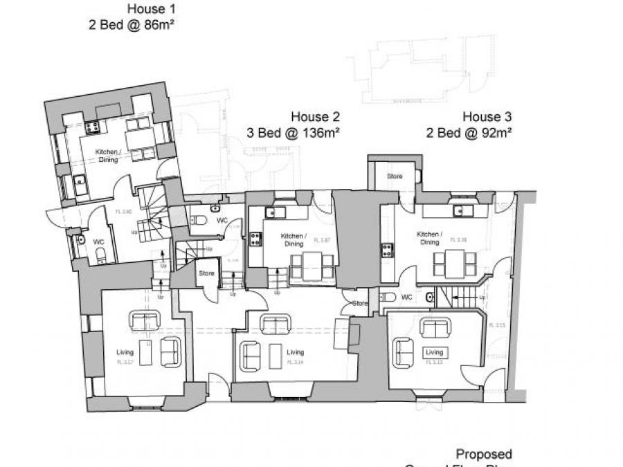
A residential development opportunity comprising of a former public house with a Grant of Conditional Planning Permission in place, under application number APP/D0840/W/20/3251246 on the 9th September 2020 for 'Proposed change of use of public house to three dwellings, external alterations and demolition of outbuildings to the rear at the Mark of Friendship, New Street, Millbrook, Cornwall PL10 1BY. The permission is granted in accordance with the terms of the application ref PA19/07150 dated 8th September 2019. Interested parties must make and rely upon their own planning enquiries of Cornwall Council Planning Department.
The Cornish village of Millbrook sits on the Rame peninsular and offers a selection of day to day shopping facilities, amenities including a doctors surgery, public house and primary school, with further facilities and amenities available at Kingsand, Cawsand, Torpoint and Plymouth city centre beyond via the Torpoint Ferry.
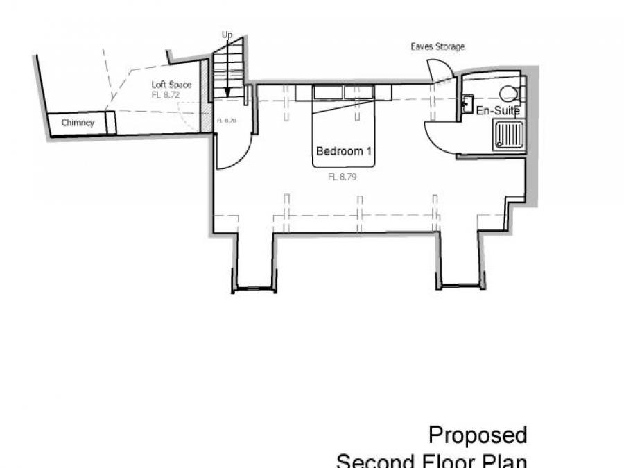
House 1: Ground Floor: Entrance hall, living room, kitchen/diner, wc. First Floor: Landing, two bedrooms and bathroom. House 2: Ground Floor: Entrance hall, living room, kitchen/diner, wc. First Floor: Landing, two bedrooms and bathroom. Second Floor: Master bedroom and en-suite shower room. House 3: Ground Floor: Entrance hall, living room, kitchen/diner, wc. First Floor: Landing, two bedrooms and bathroom.
All properties will have the benefit of their own private enclosed rear courtyard gardens, with bin and cycle storage.
Strictly by prior appointment with Miller Countrywide Torpoint 01752 813688. General enquiries Countrywide Property Auctions 01395 275691.
We understand that the property is subject to VAT. GET READY TO BID BY VISITING THE AUCTIONEERS WEBSITE
Freehold
Property Auctions South West
Head Office
2 Cotton Street
Liverpool
L3 7DY
t. 01395 275 691
auctions@suttonkersh.co.uk
Fields marked * are required.
Your information is being collected and processed by Countrywide. All information will be processed in accordance with the General Data Protection Regulation. Full details of how we process your information can be found on our website Privacy Policy. Print copies of our privacy notice are available on request. If you need to discuss how your information is being processed, please contact us at privacy@countrywide.co.uk
Disclaimer: On some client's instructions not all properties are available to purchase prior to auction however we will submit all offers on your behalf.
An indication of the seller's current minimum acceptable price at auction. The guide price or range of guide prices is given to assist consumers in deciding whether or not to pursue a purchase. It is usual, but not always the case, that a provisional reserve range is agreed between the seller and the auctioneer at the start of marketing. As the reserve is not fixed at this stage and can be adjusted by the seller at any time up to the day of the auction in the light of interest shown during the marketing period, a guide price is issued. This guide price can be shown in the form of a minimum and maximum price range within which an acceptable sale price (reserve) would fall, or as a single price figure within 10% of which the minimum acceptable price (reserve) would fall. A guide price is different to a reserve price (see separate definition). Both the guide price and the reserve price can be subject to change up to and including the day of the auction.
The seller's minimum acceptable price at auction and the figure below which the auctioneer cannot sell. The reserve price is not disclosed and remains confidential between the seller and the auctioneer. Both the guide price and the reserve price can be subject to change up to and including the day of the auction.
A successful purchaser will also be required to pay a Buyer’s Administration Charge of 1.2% of the purchase price subject to a minimum fee of £1,500 including VAT (unless stated otherwise within the property description in the catalogue) by debit card or bank transfer.
You are bidding on the basis that you have made all necessary enquiries, particularly in respect of lots the auctioneer has not inspected or had initial sight of tenancy details, and have checked the General and Special Conditions of Sale and are satisfied that you fully understand their content. Please note that some legal packs may contain additional fees (such as the requirement for the seller to pay the vendor's legal fees).
Contact our regional offices by telephone