A three bedroom detached dormer bungalow requiring modernisation situated in the immensely popular coastal village of Trevone, having the benefit of sea views and being in close proximity of the sandy beach of Trevone Bay. The property offers tremendous potential to create an enviable family home in this highly sought after location, or perhaps as a second home with additional holiday lettings income.
Trevone is an extremely sought after coastal village situated in an Area of Outstanding Natural Beauty and is also a Site of Special Scientific Interest, with Trevone Bay itself offering both sandy and slate beaches, the North Cornwall Coast Path all within walking distance of the property. The village offers a beach and surf shop, seasonal licensed beach café, village store, village hall and public house.
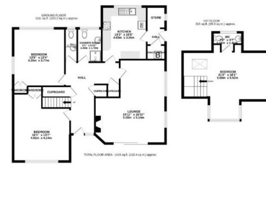
Entrance hall, lounge/diner, kitchen with rear hallway and store room, two double bedrooms, shower room and separate WC.
Master bedroom with en-suite WC.
Front and rear gardens, detached garage and additional on drive parking.
Strictly by prior appointment with Stratton Creber Padstow 01841 532230. General enquiries Countrywide Property Auctions 01395 275691.
E
E GET READY TO BID BY VISITING THE AUCTIONEERS WEBSITE
Freehold
Property Auctions South West
Head Office
2 Cotton Street
Liverpool
L3 7DY
t. 01395 275 691
auctions@suttonkersh.co.uk
Fields marked * are required.
Your information is being collected and processed by Countrywide. All information will be processed in accordance with the General Data Protection Regulation. Full details of how we process your information can be found on our website Privacy Policy. Print copies of our privacy notice are available on request. If you need to discuss how your information is being processed, please contact us at privacy@countrywide.co.uk
Disclaimer: On some client's instructions not all properties are available to purchase prior to auction however we will submit all offers on your behalf.
An indication of the seller's current minimum acceptable price at auction. The guide price or range of guide prices is given to assist consumers in deciding whether or not to pursue a purchase. It is usual, but not always the case, that a provisional reserve range is agreed between the seller and the auctioneer at the start of marketing. As the reserve is not fixed at this stage and can be adjusted by the seller at any time up to the day of the auction in the light of interest shown during the marketing period, a guide price is issued. This guide price can be shown in the form of a minimum and maximum price range within which an acceptable sale price (reserve) would fall, or as a single price figure within 10% of which the minimum acceptable price (reserve) would fall. A guide price is different to a reserve price (see separate definition). Both the guide price and the reserve price can be subject to change up to and including the day of the auction.
The seller's minimum acceptable price at auction and the figure below which the auctioneer cannot sell. The reserve price is not disclosed and remains confidential between the seller and the auctioneer. Both the guide price and the reserve price can be subject to change up to and including the day of the auction.
A successful purchaser will also be required to pay a Buyer’s Administration Charge of 1.2% of the purchase price subject to a minimum fee of £1,500 including VAT (unless stated otherwise within the property description in the catalogue) by debit card or bank transfer.
You are bidding on the basis that you have made all necessary enquiries, particularly in respect of lots the auctioneer has not inspected or had initial sight of tenancy details, and have checked the General and Special Conditions of Sale and are satisfied that you fully understand their content. Please note that some legal packs may contain additional fees (such as the requirement for the seller to pay the vendor's legal fees).
Contact our regional offices by telephone