Liverpool
Exeter
Wales
Current Auction
Previous Auction

Lot 112
Withdrawn

Auction Date: Thursday 15th February 2024

Auction Venue: Online Virtual Auction, remote bidding only

Auction Time: 12:00


5 Fore Street, Bodmin, Cornwall

View large map

Property Description

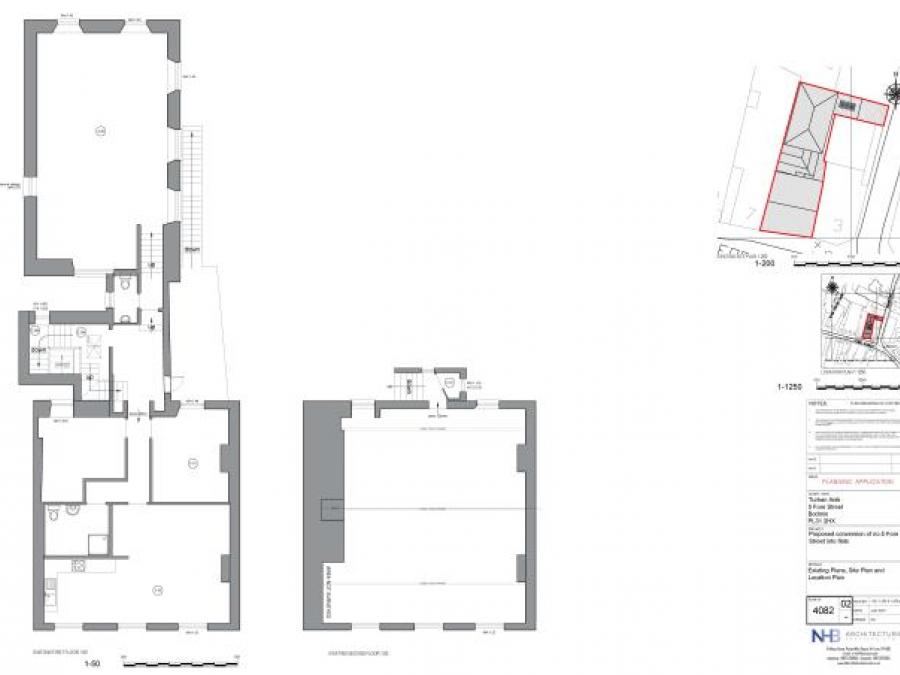
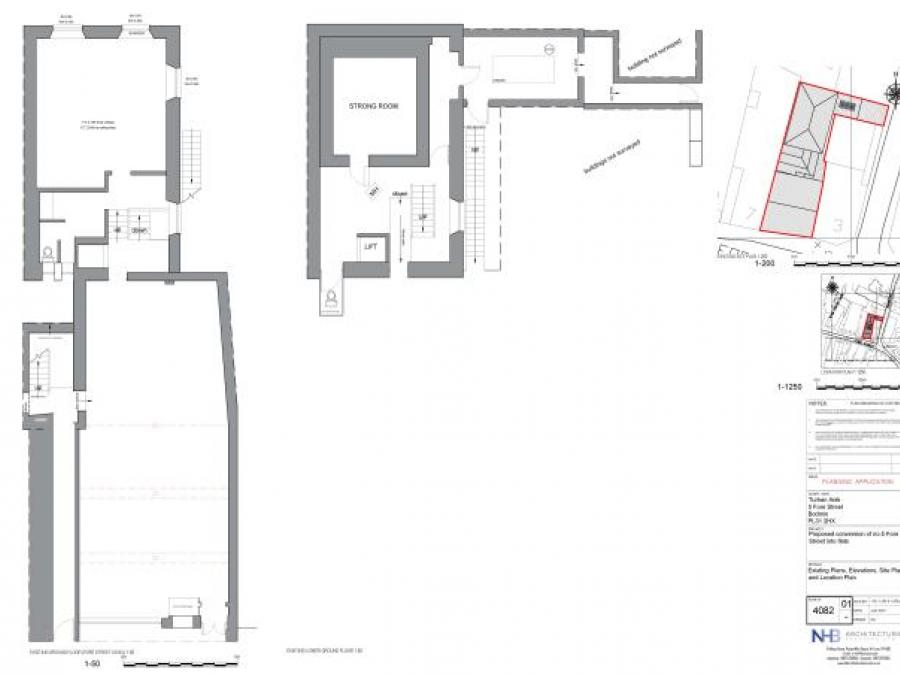
A vacant three storey town centre former NatWest bank premises, comprising of two linked buildings with access from both Fore Street and Crockwell Street. The property offers tremendous potential for further perhaps upwards extension and residential development in part, along with retaining a commercial element, subject to any requisite consents, upon which interested parties must make and rely upon their own planning enquiries of Cornwall Council planning department.


Situated

Fore Street is the main trading area of the thriving town of Bodmin, having enjoyed a programme of regeneration in recent years and being readily commutable to the A30/A38 road networks, along with the mainline railway station at Bodmin Parkway.

Fore Street Premises

Basement Two storage rooms. Ground Floor Entrance vestibule, former banking hall. Rear lobby linking to the rear building and two further rooms. First Floor Landing, former staff room, two offices and former kitchen. Second Floor Open plan attic space.

Rear Building Accessed from Crockwell Street

Ground Floor Former office space and strong room. First Floor Large landing, former server room and cloakroom. Second Floor Open plan room, former kitchen and bathroom.

Outside

Rear passageway leading to Crockwell Street with former boiler room and store.

Viewings

Strictly by prior appointment with Stratton Creber Bodmin 01208 74422. General enquiries Countrywide Property Auctions 01395 275691.

VOA Rating

£16,000

Commercial EPC Rating

D

Note

We understand that the current owner has been in discussion with Cornwall Council plannning department with regards to conversion in part for residential flats. Please refer to the legal pack for further information, advice given and architechts drawings. The Promap shown is for approximate identification purposes only and is not to scale. Crown Copyright Reserved. GET READY TO BID BY VISITING THE AUCTIONEERS WEBSITE

Tenure

Freehold


Listed By

Property Auctions South West
Head Office
2 Cotton Street
Liverpool
L3 7DY

t. 01395 275 691
auctions@suttonkersh.co.uk

Make An Enquiry...

Fields marked * are required.


Your information is being collected and processed by Countrywide. All information will be processed in accordance with the General Data Protection Regulation. Full details of how we process your information can be found on our website Privacy Policy. Print copies of our privacy notice are available on request. If you need to discuss how your information is being processed, please contact us at privacy@countrywide.co.uk

Disclaimer: On some client's instructions not all properties are available to purchase prior to auction however we will submit all offers on your behalf.


* Guide Price

An indication of the seller's current minimum acceptable price at auction. The guide price or range of guide prices is given to assist consumers in deciding whether or not to pursue a purchase. It is usual, but not always the case, that a provisional reserve range is agreed between the seller and the auctioneer at the start of marketing. As the reserve is not fixed at this stage and can be adjusted by the seller at any time up to the day of the auction in the light of interest shown during the marketing period, a guide price is issued. This guide price can be shown in the form of a minimum and maximum price range within which an acceptable sale price (reserve) would fall, or as a single price figure within 10% of which the minimum acceptable price (reserve) would fall. A guide price is different to a reserve price (see separate definition). Both the guide price and the reserve price can be subject to change up to and including the day of the auction.

* Reserve Price

The seller's minimum acceptable price at auction and the figure below which the auctioneer cannot sell. The reserve price is not disclosed and remains confidential between the seller and the auctioneer. Both the guide price and the reserve price can be subject to change up to and including the day of the auction.

Buyers Fee

A successful purchaser will also be required to pay a Buyer’s Administration Charge of 1.2% of the purchase price subject to a minimum fee of £1,500 including VAT (unless stated otherwise within the property description in the catalogue) by debit card or bank transfer.

Legal Packs

You are bidding on the basis that you have made all necessary enquiries, particularly in respect of lots the auctioneer has not inspected or had initial sight of tenancy details, and have checked the General and Special Conditions of Sale and are satisfied that you fully understand their content. Please note that some legal packs may contain additional fees (such as the requirement for the seller to pay the vendor's legal fees).

Property Auctions South West Logo

Next auction
12th February at 12pm
Inviting Entries

Covering the South West of England

propertyauctionsouthwest.co.uk

John Francis Logo

Next auction
1st January at 3pm
View lots

Covering Wales

johnfrancis.co.uk

Sutton Kersh Logo

Next auction
12th February at 12pm
Inviting Entries

Covering the North West of England

suttonkersh.co.uk

Want to talk to someone?

Contact our regional offices by telephone