The guide price has been reduced to £200,000+
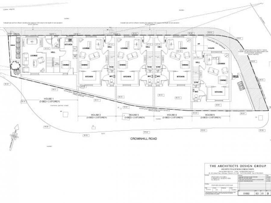
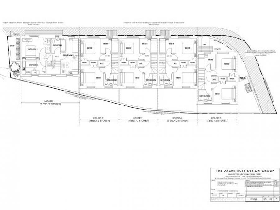
An interesting opportunity to acquire a development site with planning permission in place for 5 x two storey, three bedroom terraced dwellings, associated gardens, bin stores and parking, having the benefit of a Certificate of Proposed Lawful Development issued under application number 20/01371/PRUS on the 12th February 2021 by Plymouth City Council.
Crownhill Road is situated in the Higher Saint Budeaux area of Plymouth, with excellent access to the A38, local shops and facilities, along with those of Plymouth City centre beyond.
House 1: Entrance hall, kitchen/diner, lounge, WC. Landing, 3 bedrooms and bathroom. House 2: Entrance hall, lounge/kitchen/diner, WC. Landing, 3 bedrooms and bathroom. House 3: Entrance hall, lounge/kitchen/diner, WC. Landing, 3 bedrooms and bathroom. House 4: Entrance hall, lounge/kitchen/diner, WC. Landing, 3 bedrooms and bathroom. House 5: Entrance hall, lounge/kitchen/diner, WC. Landing, 3 bedrooms and bathroom.
20/01371/PRUS Erection of 5no. Dwellings (Class C3) approved on appeal under application 02/01727 and appeal reference APP/N1160/A/03/1128364. Interested parties must make and rely upon their own planning enquiries of Plymouth City Council planning department.
At any reasonable time during daylight hours and at the viewers own risk, or by prior appointment with Fulfords St Budeaux 01752 362481. General planning enquiries Charlie Staines 07731 988875. General enquiries Countrywide Property Auctions 01395 275691. GET READY TO BID BY VISITING THE AUCTIONEERS WEBSITE
Freehold
Property Auctions South West
Head Office
2 Cotton Street
Liverpool
L3 7DY
t. 01395 275 691
auctions@suttonkersh.co.uk
Fields marked * are required.
Your information is being collected and processed by Countrywide. All information will be processed in accordance with the General Data Protection Regulation. Full details of how we process your information can be found on our website Privacy Policy. Print copies of our privacy notice are available on request. If you need to discuss how your information is being processed, please contact us at privacy@countrywide.co.uk
Disclaimer: On some client's instructions not all properties are available to purchase prior to auction however we will submit all offers on your behalf.
An indication of the seller's current minimum acceptable price at auction. The guide price or range of guide prices is given to assist consumers in deciding whether or not to pursue a purchase. It is usual, but not always the case, that a provisional reserve range is agreed between the seller and the auctioneer at the start of marketing. As the reserve is not fixed at this stage and can be adjusted by the seller at any time up to the day of the auction in the light of interest shown during the marketing period, a guide price is issued. This guide price can be shown in the form of a minimum and maximum price range within which an acceptable sale price (reserve) would fall, or as a single price figure within 10% of which the minimum acceptable price (reserve) would fall. A guide price is different to a reserve price (see separate definition). Both the guide price and the reserve price can be subject to change up to and including the day of the auction.
The seller's minimum acceptable price at auction and the figure below which the auctioneer cannot sell. The reserve price is not disclosed and remains confidential between the seller and the auctioneer. Both the guide price and the reserve price can be subject to change up to and including the day of the auction.
A successful purchaser will also be required to pay a Buyer’s Administration Charge of 1.2% of the purchase price subject to a minimum fee of £1,500 including VAT (unless stated otherwise within the property description in the catalogue) by debit card or bank transfer.
You are bidding on the basis that you have made all necessary enquiries, particularly in respect of lots the auctioneer has not inspected or had initial sight of tenancy details, and have checked the General and Special Conditions of Sale and are satisfied that you fully understand their content. Please note that some legal packs may contain additional fees (such as the requirement for the seller to pay the vendor's legal fees).
Contact our regional offices by telephone